Detail drawings

Austrotherm
Bramac
Hofstädter Kft.
Hörmann
Terrán
Wienerberger
Ytong
Search Detail drawings 


Alapkép


Pincefal Detail drawings
Insulation against soil vapor
  Pincefal és pincepadló találkozása
Pincefal és pincepadló kapcsolata - PTH 38 Pincetégla
Formation of the inner structural wall
  Belső teherhordó fal és pincepadló kapcsolata
Belső teherhordó fal és pincepadló kapcsolata - PTH 30 N+F
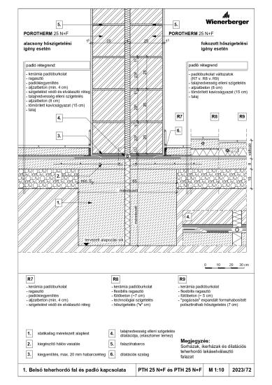
Belső teherhordó fal és padló kapcsolata - PTH 25 N+F és PTH 25 N+F
  Válaszfal és pincepadló kapcsolata
Válaszfal és pincepadló kapcsolata - PTH 10 N+F
  Belső teherhordó fal részben alápincézett épületnél
Pincefal részben alápincézett épületnél - Pincetégla + PTH 30 N+F
Pincefal részben alápincézett épületnél - Pincetégla + PTH 30 N+F Rapid


Padló, Lábazat Detail drawings
Floor lying on the ground
  Külső teherhordó fal lábazata
Külső teherhordó fal lábazata - PTH 44 X-therm + vakolat
Külső teherhordó fal lábazata - PTH 30 N+F + téglaburkolat
Külső teherhordó fal lábazata - PTH 44 X-therm Rapid + vakolat
Külső teherhordó fal lábazata - PTH 30 X-therm Rapid + hőszigetelés + vakolat
Külső teherhordó fal lábazata - PTH 38 Thermo Rapid + vakolat
Külső teherhordó fal lábazata - PTH 44 X-therm Rapid + vakolat
Külső teherhordó fal lábazata - PTH 44 Thermo Rapid + vakolat
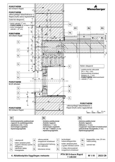
Külső teherhordó fal lábazata - PTH 50 X-therm Rapid + vakolat
Külső teherhordó fal lábazata - PTH 50 Thermo Rapid + vakolat
Külső teherhordó fal lábazata - PTH 38 Thermo Rapid + téglaburkolat
Building with basement
  Külső teherhordó fal lábazata
Külső teherhordó fal lábazata - PTH 44 X-therm + vakolat
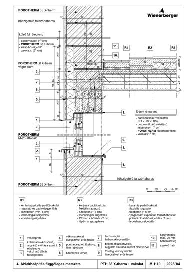
Külső teherhordó fal lábazata - PTH 38 X-therm + vakolat
Külső teherhordó fal lábazata - PTH 30 N+F + téglaburkolat
Külső teherhordó fal lábazata - PTH 30 X-therm Rapid + hőszigetelés + vakolat
Külső teherhordó fal lábazata - PTH 38 X-therm Rapid + vakolat
Külső teherhordó fal lábazata - PTH 38 Thermo Rapid + vakolat
Külső teherhordó fal lábazata - PTH 44 X-therm Rapid + vakolat
Külső teherhordó fal lábazata - PTH 44 Thermo Rapid + vakolat
Külső teherhordó fal lábazata - PTH 50 X-therm Rapid + vakolat
Külső teherhordó fal lábazata - PTH 50 Thermo Rapid+ vakolat
Külső teherhordó fal lábazata - PTH 38 Thermo Rapid + téglaburkolat


Falazat - Födém Detail drawings
  Külső teherhordó fal és közbenső födém csatlakozása
Külső fal és közbenső födém kapcsolata - PTH 44 X-therm + vakolat
Külső fal és közbenső födém kapcsolata - PTH 38 X-therm + vakolat
Külső fal és közbenső födém kapcsolata - PTH 30 N+F + téglaburkolat
Külső fal és közbenső födém kapcsolata - PTH 50 Thermo Rapid + vakolat
Külső fal és közbenső födém kapcsolata - PTH 50 Thermo Rapid + vakolat
Külső fal és közbenső födém kapcsolata - PTH 50 X-therm Rapid + vakolat
Külső fal és közbenső födém kapcsolata - PTH 50 X-therm Rapid + vakolat
Külső fal és közbenső födém kapcsolata - PTH 44 Thermo Rapid + vakolat
Külső fal és közbenső födém kapcsolata - PTH 44 Thermo Rapid + vakolat
Külső fal és közbenső födém kapcsolata - PTH 44 X-therm Rapid + vakolat
Külső fal és közbenső födém kapcsolata - PTH 44 X-therm Rapid + vakolat
Külső fal és közbenső födém kapcsolata - PTH 38 Thermo Rapid + vakolat
Külső fal és közbenső födém kapcsolata - PTH 38 X-therm Rapid + vakolat
Külső fal és közbenső födém kapcsolata - PTH 30 N+F Rapid + hőszigetelés + vakolat
Külső fal és közbenső födém kapcsolata - PTH 30 N+F Rapid + téglaburkolat
Vázkitöltő fal és közbenső födém kapcsolata - PTH 38 X-therm + vakolat
Vázkitöltő fal és közbenső födém kapcsolata - PTH 44 X-therm + vakolat
Vázkitöltő fal és közbenső födém kapcsolata - PTH 38 X-therm + vakolat
Vázkitöltő fal és közbenső födém kapcsolata - PTH 30 X-therm + hőszigetelés + vakolat
  Falazóelemek kapcsolati rajzai
1. Falazóelemek kapcsolati rajzai - PTH 50 Thermo Rapid
2. Falazóelemek kapcsolati rajzai - PTH 50 X-therm Rapid
3. Falazóelemek kapcsolati rajzai - PTH 44 Thermo Rapid
4. Falazóelemek kapcsolati rajzai - PTH 44 X-therm vagy PTH 44 X-therm Rapid
5. Falazóelemek kapcsolati rajzai - PTH 38 Thermo Rapid
6. Falazóelemek kapcsolati rajzai - PTH 38 X-therm vagy PTH 38 X-therm Rapid
7. Falazóelemek kapcsolati rajzai - PTH 30 X-Therm vagy PTH 30 X-Therm Rapid
8. Falazóelemek kapcsolati rajzai - PTH 30 N+F vagy PTH 30 N+F Rapid
9. Falazóelemek kapcsolati rajzai - PTH 44 X-therm Rapid + PTH 10 N+F Rapid
10. Falazóelemek kapcsolati rajzai - PTH 44 X-therm + PTH 10 N+F
11. Falazóelemek kapcsolati rajzai - PTH 44 Thermo Rapid + PTH 30 AKU Z
12. Falazóelemek kapcsolati rajzai - PTH 30 X-therm + PTH 30 AKU Z
13. Falazóelemek kapcsolati rajzai - PTH 30 X-therm + PTH 30 AKU Z
14. Falazóelemek kapcsolati rajzai - PTH 30 X-therm + PTH 25 AKU Z
15. Falazóelemek kapcsolati rajzai - PTH 38 Pincetégla
16. Falazóelemek kapcsolati rajzai - PTH 10 N+F + PTH 10 N+F
17. Falazóelemek kapcsolati rajzai - PTH 10 N+F + PTH 10 N+F
  POROTHERM Profi építési rendszer beépítése, falnézet
1. POROTHERM Profi építési rendszer beépítése, falnézet - PTH 50 Thermo Rapid, PTH 50 X-therm Rapid, PTH 44 Thermo Rapid, PTH 44 X-therm Rapid, PTH 38 Thermo Rapid, PTH 38 X-therm Rapid, PTH 30 X-therm Rapid, PTH 30 N+F Rapid
2. POROTHERM építési rendszer beépítése, falnézet - PTH 44 X-therm, PTH 38 X-therm, PTH 30 X-therm, PTH 38 N+F, PTH 30 N+F
Interior wall – slab
  Belső teherhordó fal és közbenső födém kapcsolata
Belső teherhordó fal és közbenső födém kapcsolata - PTH 25 N+F és PTH 25 N+F
  Belső válaszfal és közbenső födém kapcsolata
Válaszfal és közbenső födém kapcsolata - PTH 10 N+F
Infill walls
  Pillér, fal csatlakozásai
Vázkitöltő fal és pillér kapcsolata - PTH 44 X-therm + vakolat
Vázkitöltő fal és pillér kapcsolata - PTH 38 X-therm + vakolat
Vázkitöltő fal és pillér kapcsolata - PTH 30 X-therm + hőszigetelés + vakolat


Nyílászáró Detail drawings
Window
  Ablakbeépítés függőleges metszete
Ablakbeépítés függőleges metszete - PTH 44 X-therm + vakolat
Ablakbeépítés függőleges metszete - PTH 38 X-therm + vakolat
Ablakbeépítés függőleges metszete - PTH 30 N+F + téglaburkolat
Ablakbeépítés függőleges metszete - PTH 30 N+F + téglaburkolat
Ablakbeépítés függőleges metszete - PTH 50 Thermo Rapid + vakolat
Ablakbeépítés függőleges metszete - PTH 50 X-therm Rapid + vakolat
Ablakbeépítés függőleges metszete - PTH 44 Thermo Rapid + vakolat
Ablakbeépítés függőleges metszete - PTH 44 X-therm Rapid + vakolat
Ablakbeépítés függőleges metszete - PTH 38 Thermo Rapid + vakolat
Ablakbeépítés függőleges metszete - PTH 38 X-therm Rapid + vakolat
Ablakbeépítés függőleges metszete - PTH 30 N+F Rapid + hőszigetelés + vakolat
Ablakbeépítés függőleges metszete - PTH 30 N+F Rapid + hőszigetelés + vakolat
Ablakbeépítés függőleges metszete - PTH 30 N+F Rapid + téglaburkolat
Ablakbeépítés függőleges metszete - PTH 30 N+F Rapid + téglaburkolat
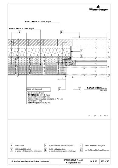
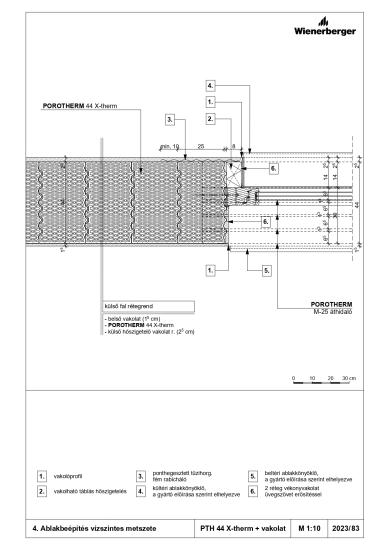
  Ablakbeépítés vízszintes metszete
Ablakbeépítés vízszintes metszete - PTH 44 X-therm + vakolat
Ablakbeépítés vízszintes metszete - PTH 38 X-therm + vakolat
Ablakbeépítés vízszintes metszete - PTH 30 N+F + téglaburkolat
Ablakbeépítés vízszintes metszete - PTH 30 N+F + téglaburkolat
Ablakbeépítés vízszintes metszete - PTH 50 Thermo Profi + vakolat
Ablakbeépítés vízszintes metszete - PTH 50 X-therm Rapid + vakolat
Ablakbeépítés vízszintes metszete - PTH 44 Thermo Rapid + vakolat
Ablakbeépítés vízszintes metszete - PTH 44 X-therm Rapid + vakolat
Ablakbeépítés vízszintes metszete - PTH 38 Thermo Rapid + vakolat
Ablakbeépítés vízszintes metszete - PTH 38 X-therm Rapid + vakolat
Ablakbeépítés vízszintes metszete - PTH 30 N+F Rapid + hőszigetelés + vakolat
Ablakbeépítés vízszintes metszete - PTH 30 N+F Rapid + téglaburkolat
Ablakbeépítés vízszintes metszete - PTH 30 N+F Rapid + téglaburkolat
Interior door
  Ajtóbeépítés függőleges metszete
Ajtóbeépítés függőleges metszete - PTH 30 N+F
Ajtóbeépítés függőleges metszete - PTH 25 N+F
Ajtóbeépítés függőleges metszete - PTH 10 N+F
Ajtóbeépítés függőleges metszete - PTH 30 N+F Rapid
Ajtóbeépítés függőleges metszete - PTH 25 N+F Rapid
Ajtóbeépítés függőleges metszete - PTH 10 N+F Rapid


Tető Detail drawings
  Tetőtérbeépítés esetén
Magastető - tetőtérbeépítés esetén - PTH 10 N+F
Magastető - tetőtérbeépítés esetén - PTH 10 N+F
Magastető - tetőtérbeépítés esetén - PTH 50 Thermo Rapid + vakolat
Magastető - tetőtérbeépítés esetén - PTH 50 X-therm Rapid + vakolat
Magastető - tetőtérbeépítés esetén - PTH 44 Thermo Rapid + vakolat
Magastető - tetőtérbeépítés esetén - PTH 44 X-therm Rapid + vakolat
Magastető - tetőtérbeépítés esetén - PTH 10 N+F Rapid
Magastető - tetőtérbeépítés esetén - PTH 10 N+F Rapid
Magastető - tetőtérbeépítés esetén - PTH 30 N+F + téglaburkolat
Magastető - tetőtérbeépítés esetén - PTH 38 X-therm + vakolat
Magastető - tetőtérbeépítés esetén - PTH 38 Thermo Rapid + téglaburkolat
Eaves shaping
  Külső fal és fedélszék kapcsolata tetőtérbeépítés nélkül
Magastető - tetőtérbeépítés nélkül - PTH 44 X-therm + vakolat
Magastető - tetőtérbeépítés nélkül - PTH 30 N+F + téglaburkolat
Magastető - tetőtérbeépítés nélkül - PTH 38 Thermo Rapid + vakolat
Magastető - tetőtérbeépítés nélkül - PTH 38 Thermo Rapid + téglaburkolat
  Külső fal és fedélszék kapcsolata térdfal nélküli tetőtérbeépítés esetén
Magastető - tetőtérbeépítés esetén - PTH 38 X-therm + vakolat
Magastető - tetőtérbeépítés esetén - PTH 30 N+F + téglaburkolat
Magastető - tetőtérbeépítés esetén - PTH 30 N+F Profi + hőszigetelés + vakolat
Magastető - tetőtérbeépítés esetén - PTH 38 Thermo Rapid + téglaburkolat
  Eresz kialakítás
Tondach Twiston 9 tetőcserép
Tondach Contiton 9 tetőcserép
Tondach Planoton 14 tetőcserép
Tondach Planoton 9 tetőcserép
Tondach Renoton 15 tetőcserép
Tondach Renoton 9 tetőcserép
Tondach Veneton 14 tetőcserép
Tondach Hódfarkú ívesvágású 18x38 tetőcserép
Tondach Hódfarkú szegmensvágású 18x38 tetőcserép
Tondach Hódfarkú ívesvágású 19x40 tetőcserép
Tondach Hódfarkú szegmensvágású 19x40 tetőcserép
Tondach Táska szögletes tetőcserép
Tondach Osztrák Óvárosi táska tetőcserép
Tondach Kékes Ívesvágású tetőcserép
Tondach Kékes egyenesvágású tetőcserép
Tondach Kékes Plus Ívesvágású tetőcserép
Tondach Kékes Plus egyenesvágású tetőcserép
Tondach Pilis Ívesvágású tetőcserép
Tondach Pilis egyenesvágású tetőcserép
Tondach Pilis Max ívesvágású tetőcserép
Tondach Pilis Max egyenesvágású tetőcserép
Tondach Sindra Plus Natura tetőcserép
Tondach V11 tetőcserép
Tondach Actua 10 tetőcserép
Furrow solution
  Vápa kialakítás Tondach cserepekkel
Hasznosított újépítésű tető építése egyrétegű PIR szarufa feletti hőszigeteléssel. 35° tetőhajlásszög esetén. Egyszeresen átszellőztetett rétegrend.
Hasznosított újépítésű tető kombinált szálas hőszigeteléssel és PIR szarufa feletti hőszigeteléssel.
Hasznosított tető meglévő bennmaradó szálas hőszigeteléssel és PIR szarufa feletti szigeteléssel.
Ridge shaping
  Magastető gerinc kialakítás
Tondach Twiston 9 tetőcserép
Tondach Contiton 9 tetőcserép
Tondach Planoton 14 tetőcserép
Tondach Planoton 9 tetőcserép
Tondach Renoton 15 tetőcserép
Tondach Renoton 9 tetőcserép
Tondach Veneton 14 tetőcserép
Tondach Hódfarkú ívesvágású 18x38 tetőcserép
Tondach Hódfarkú szegmensvágású 18x38 tetőcserép
Tondach Hódfarkú ívesvágású 19x40 tetőcserép
Tondach Hódfarkú szegmensvágású 19x40 tetőcserép
Tondach Táska szögletes tetőcserép
Tondach Osztrák Óvárosi táska tetőcserép
Tondach Kékes Ívesvágású tetőcserép
Tondach Kékes egyenesvágású tetőcserép
Tondach Kékes Plus Ívesvágású tetőcserép
Tondach Kékes Plus egyenesvágású tetőcserép
Tondach Pilis Ívesvágású tetőcserép
Tondach Pilis egyenesvágású tetőcserép
Tondach Pilis Max ívesvágású tetőcserép
Tondach Pilis Max egyenesvágású tetőcserép
Tondach Sindra Plus Natura tetőcserép
Tondach V11 tetőcserép
Tondach Actua 10 tetőcserép
Hasznosított újépítésű tető építése kombinált szálas hőszigeteléssel és PIR szarufa feletti hőszigeteléssel. 20° tetőhajlásszög esetén. Egyszeresen átszellőztetett rétegrend.
Hasznosított újépítésű tető egyrétegű PIR szarufa feletti hőszigeteléssel. 22° tetőhajlászög esetén.
Hasznosított tető meglévő bennmaradó szálas hőszigeteléssel és PIR szarufa feletti szigeteléssel. 20° tetőhajlásszög esetén


Tető Detail drawings
  Lapostetős épület attika csomópontjai
Lapostetős épület - attika és födém kapcsolata - PTH 44 X-therm + vakolat
Lapostetős épület - attika és födém kapcsolata - PTH 38 X-therm + vakolat
Lapostetős épület - attika és födém kapcsolata - PTH 30 N+F + téglaburkolat
Lapostetős épület - attika és födém kapcsolata - PTH 44 Thermo Profi + vakolat
Lapostetős épület - attika és födém kapcsolata - PTH 44 X-therm Rapid
Lapostetős épület - attika és födém kapcsolata - PTH 38 Thermo Rapid + vakolat
Lapostetős épület - attika és födém kapcsolata - PTH 38 X-therm Rapid + vakolat
Lapostetős épület - attika és födém kapcsolata - PTH 30 N+F Rapid + hőszigetelés + vakolat
Lapostetős épület - attika és födém kapcsolata - PTH 38 Thermo Rapid + téglaburkolat
    Like all websites, eptar.hu uses cookies for better and safer operation.       More information