Detail drawings

Austrotherm
Bramac
Hofstädter Kft.
Hörmann
Knauf Insulation
Terrán
Ytong
Wienerberger
Wienerberger
Wienerberger
Search Detail drawings 


Alapkép
Hirdetés


Masonry - Slab Detail drawings
Infill walls
  Pillér, fal connectioni
04.96. YTONG belső falak merevítése és pillérkapcsolatai vasbeton pillérek esetén, vízszintes metszet pillérsíkban lévő falmező esetén
04.97. YTONG belső falak merevítése és pillérkapcsolatai vasbeton pillérek esetén vízszintes metszet, pillérek előtt futó falmezők esetén
04.98. Monolit vasbeton homlokzati pillér kiegészítő hőszigetelése vízszintes metszet
04.99. Monolit vasbeton pillér és beltéri YTONG falazat csatlakozása vízszintes metszet
04.91. YTONG belső falak merevítése és pillérkapcsolatai acél pillérek esetén, vízszintes metszet
04.92. YTONG belső falak merevítése és pillérkapcsolatai acél pillérek esetén, vízszintes metszet
04.94. YTONG homlokzati falak merevítése és pillérkapcsolatai, fatartók esetén vízszintes metszet
04.95. YTONG belső falak merevítése és pillérkapcsolatai fatartók esetén
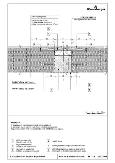
Vázkitöltő fal és pillér kapcsolata - PTH 44 X-therm + vakolat
Vázkitöltő fal és pillér kapcsolata - PTH 38 X-therm + vakolat
Vázkitöltő fal és pillér kapcsolata - PTH 30 X-therm + hőszigetelés + vakolat
  Akusztukai falak
01.22. Vázas szerkezet, SILKA akusztikai fal és YTONG külső fal csatlakozása vasbeton pillérhez
01.23. Vázas szerkezet, SILKA akusztikai fal és SILKA külső fal csatlakozása vasbeton pillérhez
01.24. Vázas szerkezet, SILKA akusztikai fal csatlakozása YTONG külső falhoz
01.25. Vázas szerkezet, SILKA akusztikai fal és csatlakozó válaszfalak kapcsolata
  Fal vízszintes metszet
Vázas szerkezet, Silka akusztikai fal és Ytong homlokzati falazat csatlakoztatása vasbeton pillérhez
Pillércsatlakozás Vízszintes metszet
Hirdetés
    Like all websites, eptar.hu uses cookies for better and safer operation.       More information