Detail drawings

Austrotherm
Bramac
Hofstädter Kft.
Hörmann
Knauf Insulation
Terrán
Ytong
Wienerberger
Wienerberger
Wienerberger
Search Detail drawings 


Alapkép
Hirdetés


Opening Detail drawings
Window
  Windowbeépítés függőleges metszete
F-03 02 Légrés nélküli réteges falszerkezet EXPERT FIX hőszigeteléssel
F-03 02 Légrés nélküli réteges falszerkezet EXPERT FIX hőszigeteléssel 2.
Ablakbeépítés függőleges metszete - PTH 44 X-therm + vakolat
Ablakbeépítés függőleges metszete - PTH 38 X-therm + vakolat
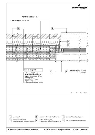
Ablakbeépítés függőleges metszete - PTH 30 N+F neo + téglaburkolat
Ablakbeépítés függőleges metszete - PTH 30 N+F neo + téglaburkolat
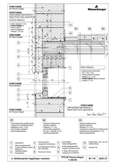
Ablakbeépítés függőleges metszete - PTH 50 Thermo Rapid + vakolat
Ablakbeépítés függőleges metszete - PTH 50 X-therm Rapid + vakolat
Ablakbeépítés függőleges metszete - PTH 44 Thermo Rapid + vakolat
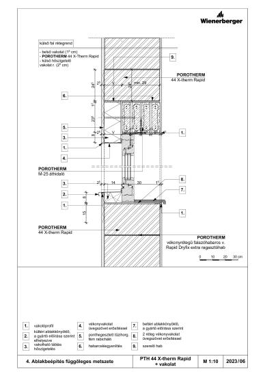
Ablakbeépítés függőleges metszete - PTH 44 X-therm Rapid + vakolat
Ablakbeépítés függőleges metszete - PTH 44 X-therm Rapid + vakolat
Ablakbeépítés függőleges metszete - PTH 38 X-therm Rapid + vakolat
Ablakbeépítés függőleges metszete - PTH 30 N+F Rapid + hőszigetelés + vakolat
Ablakbeépítés függőleges metszete - PTH 30 N+F Rapid + hőszigetelés + vakolat
Ablakbeépítés függőleges metszete - PTH 30 N+F Rapid + téglaburkolat
Ablakbeépítés függőleges metszete - PTH 30 N+F Rapid + téglaburkolat
  Windowbeépítés vízszintes metszete
Ablakbeépítés vízszintes metszete - PTH 44 X-therm + vakolat
Ablakbeépítés vízszintes metszete - PTH 38 X-therm + vakolat
Ablakbeépítés vízszintes metszete - PTH 30 N+F neo + téglaburkolat
Ablakbeépítés vízszintes metszete - PTH 30 N+F neo + téglaburkolat
Ablakbeépítés vízszintes metszete - PTH 50 Thermo Profi + vakolat
Ablakbeépítés vízszintes metszete - PTH 50 X-therm Rapid + vakolat
Ablakbeépítés vízszintes metszete - PTH 44 Thermo Rapid + vakolat
Ablakbeépítés vízszintes metszete - PTH 44 X-therm Rapid + vakolat
Ablakbeépítés vízszintes metszete - PTH 38 Thermo Rapid + vakolat
Ablakbeépítés vízszintes metszete - PTH 38 X-therm Rapid + vakolat
Ablakbeépítés vízszintes metszete - PTH 30 N+F Rapid + hőszigetelés + vakolat
Ablakbeépítés vízszintes metszete - PTH 30 N+F Rapid + téglaburkolat
Ablakbeépítés vízszintes metszete - PTH 30 N+F Rapid + téglaburkolat
F-03 03 Íves pillér hőszigetelése
F-03 03 Íves pillér hőszigetelése
Hirdetés
    Like all websites, eptar.hu uses cookies for better and safer operation.       More information