☰
Building materials catalog
BIM solutions
Architect gallery
Detail drawings
Textures
Contact
BIM shop
ENG
Sign in
Detail drawings
Search Detail drawings
Detail drawings in categories
Detail drawings on sections
Chimneys
Opening
Window
Interior door
Automatic door
Floor, Footing
Floor lying on the ground
Building with basement
Masonry - Slab
External wall - slab
Exterior wall - slab
Árkádfödém
Interior wall – slab
Infill walls
Stair
Loft slab
Wall connection
Slab layers
Roof
Pitched roof
Eaves shaping
Ridge shaping
Furrow solution
Rooftéri ablak kialakítása
Roofelemek kialakítása
Ridge shaping
Roof and wall connection
Tie beams, collar beams
Green roof
Light Tubes
Flat roof
Straight layer sequence – thermal insulation + waterproofing
Reversed layer sequence – waterproofing + thermal insulation
Green roof
Cold flat roof
Light construction solutions
Garden, paving, civil engineering
Térkő gépjárműút, gyalogút
Stair
Vízelvezetés
Plant retaining wall
Kerítés
Precast mine
Basement wall
Insulation against soil vapor
Formation of the inner structural wall
Number of downloads
8236643+
Number of CAD files
1993+
Number of Detail drawings
910+
If you like our website, please let us know by clicking on our facebook page.
Hirdetés
Garden, paving, civil engineering Detail drawings
Stair
Semmelrock Stair kialakítása
13.1.1. Lépcső kialakítása Semmelrock Citytop paliszáddal
Semmelrock
13.1.2. Lépcső kialakítása Semmelrock Citytop paliszáddal
Semmelrock
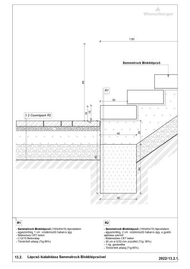
13.2.1. Lépcső kialakítása Semmelrock Blokklépcsővel
Semmelrock
13.2.2. Lépcső kialakítása Semmelrock Blokklépcsővel
Semmelrock
Tereplépcső kialakítása
Tereplépcső kialakítása, kiemelt szegéllyel, térkő burkolattal, meredek lépcső esetén
Leier
Tereplépcső kialakítása, kerti burkolólappal
Leier
Hirdetés
Like all websites, eptar.hu uses cookies for better and safer operation.
More information
Accept