Csomóponti rajzok

Austrotherm
Bramac
Hofstädter Kft.
Hörmann
Knauf Insulation
Terrán
Ytong
Wienerberger
Wienerberger
Wienerberger
Csomópont keresés 


Alapkép


Kert, térburkolat, mélyépítés csomópontok
Térkő gépjárműút, gyalogút
  Semmelrock Térkő burkolat
1.1. Térkő rétegrend különböző terheléssel általános alépítménnyel
1.2. Térkő rétegrend különböző terheléssel beton alépítménnyel
  Semmelrock Útszegély
2.1. Térkő, Kerti szegély és gyep csomópont, általános alépítménnyel (gyalogos és gépjármű forgalom)
2.2. Térkő, Kerti szegély és gyep csomópont, beton alépítménnyel (gyalogos és gépjármű forgalom)
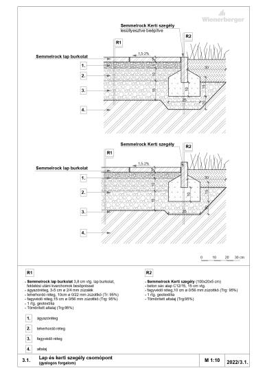
3.1. Lap és kerti szegély csomópont (gyalogos forgalom)
3.2. Lap és kerti szegély csomópont (gyalogos forgalom)
4.1. Térkő és kiemelt útszegély csomópont gyeppel (gépjármű és teher forgalom)
4.2. Térkő és kiemelt útszegély csomópont (gépjármű és teher forgalom)
5.1. Térkő és süllyesztett útszegély csomópont (gépjármű és teher forgalom)
5.2. Térkő és Süllyesztett útszegély csomópont (gépjármű és teher forgalom)
6.1. Térkő és Kiemelt útszegély csomópont (gépjármű és teher forgalom)
6.2. Térkő és Kiemelt útszegély csomópont (gépjármű és teher forgalom)
  Semmelrock Vízelvezetés (folyóka)
7.1. Térkő és Folyóka csomópont (gépjármű és gyalogos forgalom)
8.1. Térkő és Rácsos folyóka csomópont (gépjármű és gyalogos forgalom)
8.2. Térkő és Rácsos folyóka csomópont (gépjármű és teher forgalom)
9.1. Akadálymentes rámpa kialakítása térkő burkolattal
  Semmelrock Térkő és pad csatlakozása
12.1. Térkő és pad csatlakozása (oldalnézet)
12.2. Térkő és pad csatlakozása (elölnézet)
12.3. Térkő és pad csatlakozása (elölnézet)
Lépcső
  Semmelrock Lépcső kialakítása
13.1.1. Lépcső kialakítása Semmelrock Citytop paliszáddal
13.1.2. Lépcső kialakítása Semmelrock Citytop paliszáddal
13.2.1. Lépcső kialakítása Semmelrock Blokklépcsővel
13.2.2. Lépcső kialakítása Semmelrock Blokklépcsővel
Növénytámfal
  Semmelrock Növénytámfal
10.1. Támfal általános kialakítása kerítésrendszer elemből
Kerítés
  Semmelrock Kerítés
14.1.1. Rivago kerítésrendszer építése, vasalással
14.2.1. Castello kerítésrendszer építése, vasalással
14.2.2. Castello kerítésrendszer építése, vasalással
    Mint minden weboldal, az eptar.hu is sütiket használ a jobb és biztonságosabb működés érdekében.       További információk